Control Box (Cabinet) For Permanent-Magnetic Series Separator

SSTQT Commutating Control Cabinet is designed for some separators of ore recovery type in series RCDPS which is of short duty system. A full set must be combined with a metal detector and can only remove the iron after receiving a signal sent by the detector.

Operation Mode &Voltage Characteristic Sketch

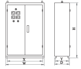
Overall Dimension Drawing
Model Designation

Main Technical Data

Related posts





